+971 50 355 1928
About Us Analytics Partnership program Contacts
NF Group
NF Group
NF Expert
Our experts will answer all your questions
Layouts Installment payment

Sobha SeaHaven

from 3 189 289
from 37 379 to 58 470  AED/m²
from 70 317 443
from 824 139 to 1 289 150  ₽/m²
from 747 405
from 8 759 to 13 702  €/m²
from 868 424
from 10 178 to 15 921  $/m²
from 691 092
from 8 099 to 12 670  ₣/m²
from 651 872
from 7 640 to 11 950  £/m²
from 6 218 435
from 72 882 to 114 004  ¥/m²
from 14 350 498 749
from 168 191 661 to 263 092 015  IDR/m²
AED
AED
$
£
¥
IDR
Whatsapp
от 3 189 289 до 26 311 588
от 37 379 до 58 470 AED per m²
от 868 424 до 7 164 487
от 10 178 до 15 921 $ per m²
от 70 317 443 до 580 117 892
от 824 139 до 1 289 150 ₽ per m²
от 747 405 до 6 166 088
от 8 759 до 13 702 € per m²
от 691 092 до 5 701 499
от 8 099 до 12 670 ₣ per m²
от 651 872 до 5 377 935
от 7 640 до 11 950 £ per m²
от 6 218 435 до 51 660 831
от 72 882 до 114 004 ¥ per m²
от 14 350 498 749 до 119 252 948 284
от 168 191 661 до 263 092 015 IDR per m²
AED
AED
$
£
¥
IDR
ID ir28794
 Sofia Purgina
Sofia Purgina
Senior Client Manager

Description

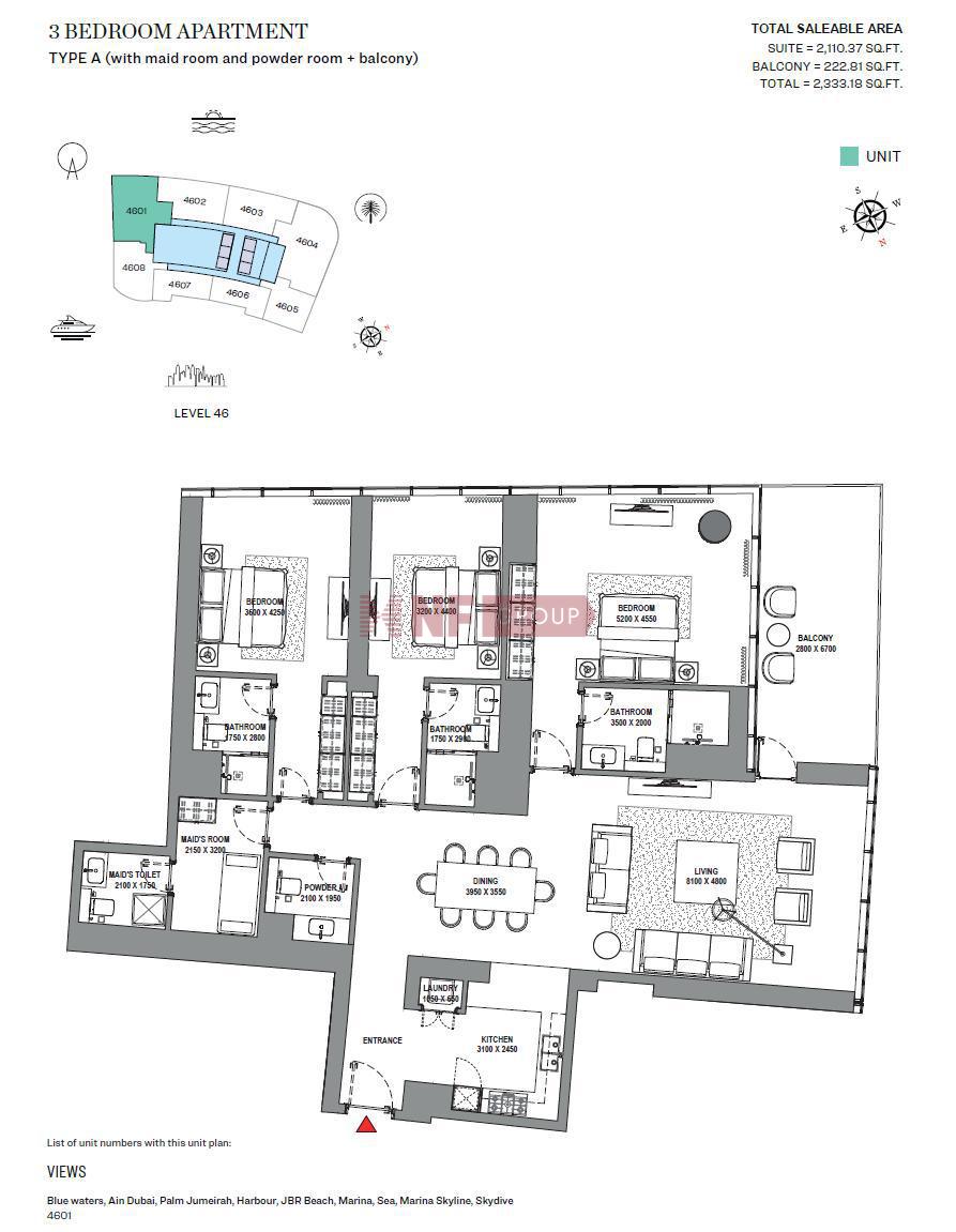
Sobha SeaHaven is a luxury residential complex of three buildings built in the prestigious area of Dubai Marina by Sobha Realty. The complex offers premium apartments from 1 to 3 bedrooms. The interior space of each apartment is thought out to the smallest detail to create comfort and coziness for its residents. The 3-bedroom apartment has an extra maid's room. In addition to apartments, Sobha SeaHaven also features entire floors, which can be purchased as an investment.

Choose an apartment in the

Buy
With furnishing, For finishing
With furnishing
For finishing
total
м²
Properties: 4
Larger area first
Smaller area first
More expensive first
Cheaper first
By relevance
Apartment from 79.10 m² from 3 189 289 AED 4
kf-expert
Apartment 79 m² - With furnishing 3 189 289 AED
38 751 AED m²
kf-expert
Apartment 137 m² - With furnishing 5 604 126 AED
40 903 AED m²
kf-expert
Apartment 249 m² - With furnishing 9 344 455 AED
37 379 AED m²
kf-expert
Apartment 450 m² - With furnishing 26 311 588 AED
58 470 AED m²

Features

About the property

Type of transaction
Sale
Type of property
Residential building
Total area
79 m²
Year of construction
2026
The presence of buildings on the plot
No

Address

Region Dubai Marina
Location Dubai
Address UAE, Dubai Marina, Dubai

Special Features

Kinds

Get a detailed presentation of the property

NF Group

Residential complex

Off-plan 2026
NF Group

See similar offers

/
Installment payment
Canal Heights 2
Business Bay UAE, Business Bay, Dubai
from 4 382 000 AED
Свернуть
ID: ir31709

Canal Heights 2

Business Bay UAE, Business Bay, Dubai
from 4 382 000 AED
Area 1 432 feet²
3 - 2 bedrooms
 Sofia Purgina
Sofia Purgina
Senior Client Manager
WhatsApp Call
Installment payment
Seapoint
Palm Jumeirah UAE, Palm Jumeirah, Dubai
from 3 087 888 AED
Свернуть
ID: ir31715

Seapoint

Palm Jumeirah UAE, Palm Jumeirah, Dubai
from 3 087 888 AED
Area 736 - 4 462 feet²
4 bedrooms
 Sofia Purgina
Sofia Purgina
Senior Client Manager
WhatsApp Call
Installment payment
Eywa
Business Bay UAE, Business Bay, Dubai
from 10 135 400 AED
Свернуть
ID: ir31717

Eywa

Business Bay UAE, Business Bay, Dubai
from 10 135 400 AED
Area 2 981 - 6 575 feet²
2 - 4 bedrooms
 Sofia Purgina
Sofia Purgina
Senior Client Manager
WhatsApp Call
Installment payment
Palm Beach Towers
Palm Jumeirah UAE, Palm Jumeirah, Dubai
from 18 971 550 AED
Свернуть
ID: ir31747

Palm Beach Towers

Palm Jumeirah UAE, Palm Jumeirah, Dubai
from 18 971 550 AED
Area 1 075 - 3 193 feet²
48 floor
1 - 3 bedrooms
 Sofia Purgina
Sofia Purgina
Senior Client Manager
WhatsApp Call
Installment payment
Thyme
Al Wasl UAE, Al Wasl, Dubai
from 12 279 000 AED
Свернуть
ID: ir31940

Thyme

Al Wasl UAE, Al Wasl, Dubai
from 12 279 000 AED
Area 3 811 feet²
4 bedrooms
 Sofia Purgina
Sofia Purgina
Senior Client Manager
WhatsApp Call
Marina Shores
Dubai Marina UAE, Dubai Marina, Dubai
from 8 450 000 AED
Свернуть
ID: ir31950

Marina Shores

Dubai Marina UAE, Dubai Marina, Dubai
from 8 450 000 AED
Area 1 147 - 2 410 feet²
50 floor
2 - 4 bedrooms
 Sofia Purgina
Sofia Purgina
Senior Client Manager
WhatsApp Call
Beach Mansion
Emaar Beachfront UAE, Emaar Beachfront, Dubai
from 4 500 000 AED
Свернуть
ID: ir32150

Beach Mansion

Emaar Beachfront UAE, Emaar Beachfront, Dubai
from 4 500 000 AED
Area 1 286 feet²
8 floor
2 bedrooms
 Sofia Purgina
Sofia Purgina
Senior Client Manager
WhatsApp Call
Iconic Tower
Dubai Internet City UAE, Dubai Internet City, Dubai
from 2 550 000 AED
Свернуть
ID: ir35117

Iconic Tower

Dubai Internet City UAE, Dubai Internet City, Dubai
from 2 550 000 AED
Area 859 - 2 681 feet²
1 - 4 bedrooms
 Sofia Purgina
Sofia Purgina
Senior Client Manager
WhatsApp Call
Six Senses Residences Dubai Marina
Dubai Marina UAE, Dubai Marina, Dubai
from 6 356 000 AED
Свернуть
ID: ir38252

Six Senses Residences Dubai Marina

Dubai Marina UAE, Dubai Marina, Dubai
from 6 356 000 AED
Area 2 009 - 3 409 feet²
2 - 5 bedrooms
 Sofia Purgina
Sofia Purgina
Senior Client Manager
WhatsApp Call
Installment payment
Damac Bay 2
Dubai Marina UAE, Dubai Marina, Dubai
from 3 280 000 AED
Свернуть
ID: ir31662

Damac Bay 2

Dubai Marina UAE, Dubai Marina, Dubai
from 3 280 000 AED
Area 798 - 7 655 feet²
1 - 5 bedrooms
 Sofia Purgina
Sofia Purgina
Senior Client Manager
WhatsApp Call

Get advice from an NF GROUP expert

How do you feel more comfortable communicating?
Sofia Purgina
Sofia Purgina
Senior Client Manager
NF Group
Authorization
We use cookies to improve the service for you.
Cookie Usage Agreement